The transformation of the peninsula between the Weser River and Europahafen – the Überseeinsel in Bremen’s Überseestadt – continues to take shape. The site of the former Rickmers Rice Mill is to become a mixed-use neighbourhood with a focus on ‘housing for the elderly’. A neighbourhood concept was developed for this purpose by SMAQ with Man Made Land. The neighbourhood concept is to be integrated into the framework plan for the Überseeinsel.
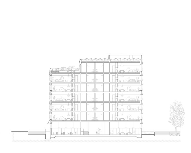
The future neighbourhood is located directly on the Weser, outside the future flood protection line. It blends into the landscape between Molenspitze and the landscape park as a permeable structure. Four point-blocks of varying heights – with six to eleven storeys – and two existing buildings will shape the ensemble and the silhouette of Überseeinsel visible from the Weser in the future. As part of the ‘Rickmers Reismühle’ building construction competition, two types of buildings were to be architecturally qualified. To this end, 13 international architectural firms were invited to participate in the competition.
The use of the site as both a shipyard and later as a rice mill has left its mark. The buildings’ metal and wood construction ties in with their history. A gently reflective cladding of slightly slanted metal panels catches the light. Tiled infill panels on the ground floor and fall protection grilles echo the striking blue of the existing building. The colourfulness of the orange-red bricks and orange security doors is echoed in the building entrances.
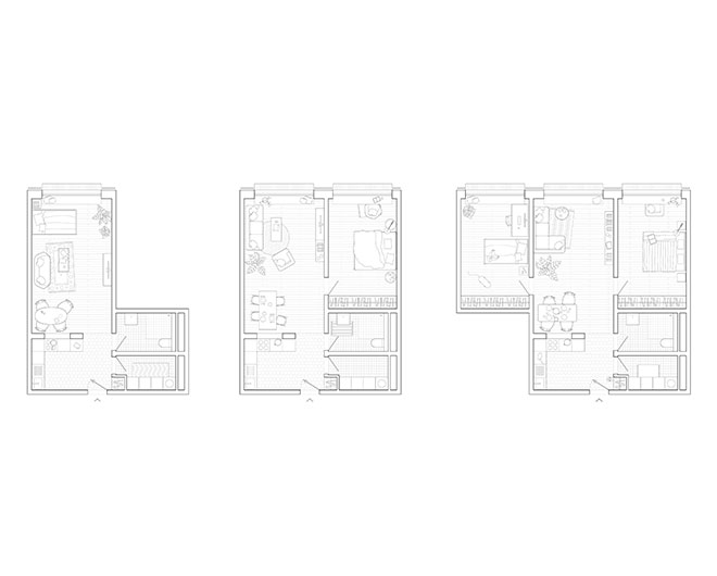
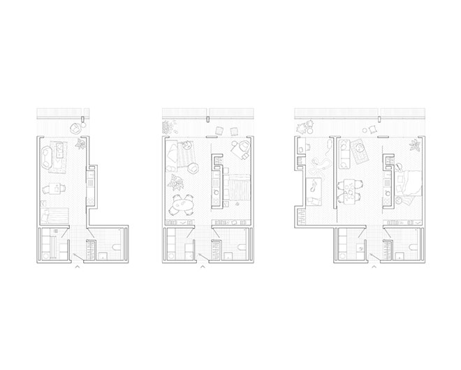
A rotated play of two building types characterises the relationship to the banks of the Weser. The conical structures, already laid out in the neighbourhood concept, consist of three fan-shaped building sections – two residential wings and a conical access structure – which take up the scale of the existing buildings and allow the structures to grow vertically out of the park thanks to their tripartite division. The tripartite division gives the buildings a face, both towards the Weser and towards the promenade on the land side. Their flanks lead to the Weser and, through their linearity, emphasise the visual connections and permeability between the Weser and the land.
invited competition for building construction: 3rd Prize
Total floor space 33,000 m²: approx. 335 flats (approx. 60% of which are for older people), daycare centre, non-residential uses related to senior living (residential care, day care, wellness, residents’ restaurant, medical services)
Commissioner: ParkQuartier Weserinsel GmbH in cooperation with the Senator for Construction, Mobility and Urban Development (SBMS) of the Free Hanseatic City of Bremen
Team SMAQ: Andreas Quednau, Sabine Müller, Bennet Tielker, Camilla Evangelisti
Visualization: Grauwald Studio, model: Modellbau Milde Berlin.











